Reserva do Moinho

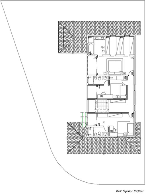
Características do Empreendimento

- Residência particular com projeto em andamento.

- Previsão para conclusão em 2008.

- Terreno de 500m2.

- Área construída útil de 330m2.

Todos os direitos reservados

Desenvolvido por
Radeol Marketing Digital